PROJEKTihl GmbH – Ihr Architekt in Göttingen für Projektplanung
Als Teil des Projektmanagements ist die Projektplanung wohl die wichtigste Phase der Projektentwicklung, in der Kostenplanung, Terminplanung und Ablaufplaung festgelegt werden.
Sollte im Laufe der Projektumsetzung der zeitliche Rahmen nicht einzuhalten sein oder sollten Anpassungen und Korrekturen im Projektablauf nötig sein, setzen wir diese in Absprache mit Ihnen um. Wir prüfen während der Entwicklungszeit des Projektes ständig die gesetzten Ziele und modifizieren diese bei Bedarf.
Haben Sie noch Fragen zu unseren Projektplanungen? Ihr Architekt in Göttingen hilft Ihnen gerne weiter!
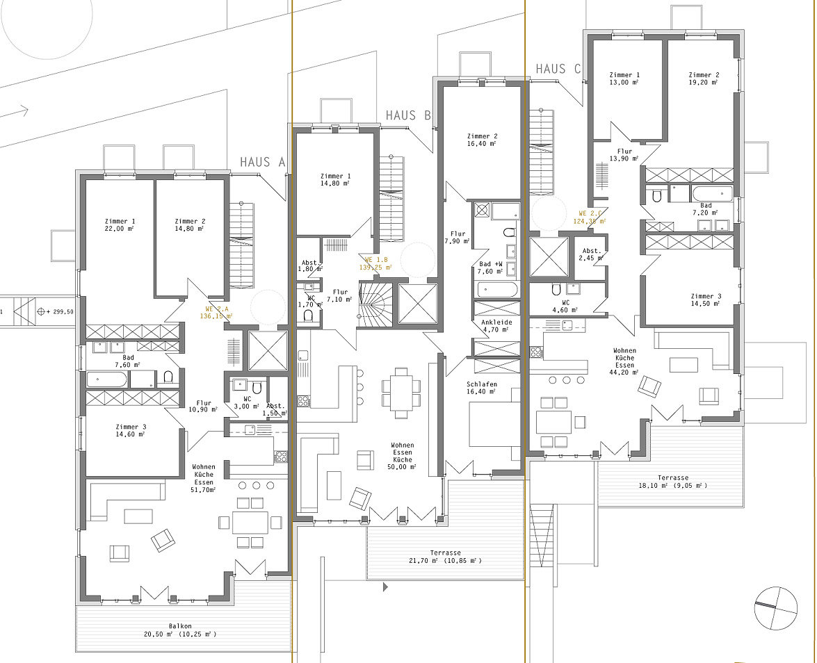
Neubau einer Hausgruppe mit 11 Wohneinheiten
Lage: Göttingen
Wohnfläche: 1.540 m²
Phase: in Bau
BGF:: 1.920 m²
BRI:: 5.570 m³
Kurzinfo: 3 Wohnhäuser, Neubaugebiet, Hanggrundstück, teilweise ausgebautes Untergeschoss, Dachterrassen, Massivbauweise, WDVS.
Neubau zweier Stadtvillen (24 WE) mit Tiefgarage
Lage: Göttingen
Phase: in Bau
Wohnfläche: 2.260 m²
BGF: 3.330 m²
BRI: 9.490 m³
Kurzinfo: 2 Wohnhäuser, Tiefgarage, Neubaugebiet, Hanggrundstück,
teilweise ausgebautes Untergeschoss, Massivbauweise,
WDVS.
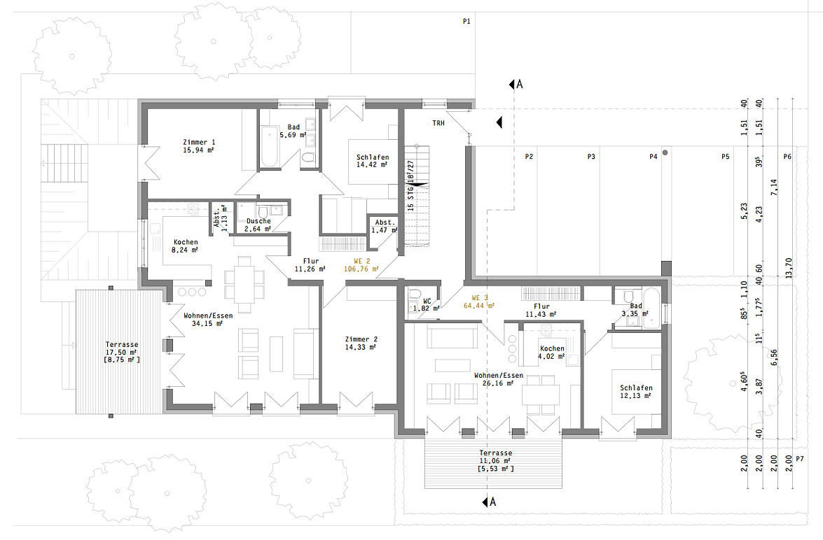
Neubau Wohnhaus (7 WE)
Lage: Göttingen
Phase: in Bau
Wohnfläche: 715 m²
BGF: 970 m²
BRI: 2.860 m3
Kurzinfo: Wohnhaus mit Satteldach, Baulücke, teilweise ausgebautes Untergeschoss, Massivbauweise, WDVS.









